
{{aisd}}
AI生成 免责声明
年初,万女士夫妻俩购置了一套二手老公房,终于结束了租房的漂泊日子。
有了自己的家,那必须“不将就”,《最家设计》在了解完业主的预算以及需求后,委派两位设计师合力出击,为万女士打造一个超赞的家!深入了解万女士全家的生活习惯,职业,人口组成结构,颜色喜好等,从户型改造到软装设计,设计师的“别有用心”让空间拥有无限可能!
案例信息
建筑面积:80㎡(使用面积65㎡)
户 型:两室/一厅
人口结构:夫妻,未来宝宝,父母暂住
房屋位置:上海闵行 共和新路
改造预算:20万
本案设计师
黄婕玲 - 擅长空间改造,风格:意式极简 简美 欧式
魏奇 - 擅长软装和功能规划,风格:轻奢 新古典 新中式
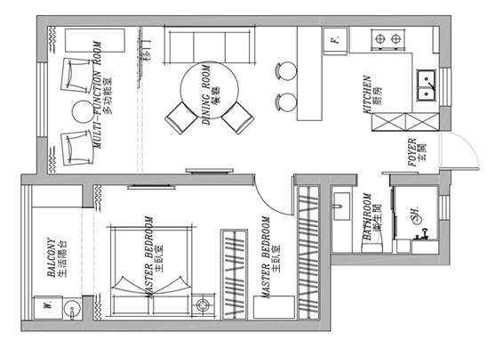
01平面改造方案

亟待解决的问题:
×进门厨房吊柜环绕,昏暗且压抑;
×客厅被墙体阻隔,无采光且功能缺失;
×次卧虽大,但不符合万女士的人口结构;
×没有独立的用餐空间;
×没有储物空间。
设计师怎么既能满足从二人世界到未来三口之家的居住规划,又能在预算内达到最好的软装效果呢?来看设计师进行户型改造!

√拆除阻隔采光的所有墙体;
√岛台做隔断,厨房U型台面扩大操作台,增加空间互动;
√次卧与客厅间墙体外移,客餐厅面积扩大,次卧变多功能房;
√柜体做隔断,主卧拥有开放式衣帽间+超大洗晒空间。
02改造效果解析
# 玄关&厨房
为了解决万女士40~50双的鞋子,设计师在进门右边定制一排通体玄关柜,鞋类收纳、随手置物和分隔功能区,三重功能一步搞定。

设计师考虑到玄关正对卫生间,那么上方高柜可用作清洁用品和纸品囤货区,拿取方便,容量超大;下方鞋柜则是根据万女士日常鞋量定制,40~50双鞋,轻松收纳,中间镂空放置钥匙、包包,下方镂空换鞋更方便,不仅不容易积灰便于打扫,而且镂空区域的灯带更有氛围感。
拆掉墙体后,设计师在客厅和厨房之间做了90cm高的岛台,不仅采光得到了改善而且将原本L型布局的厨房扩展为U型,操作台空间变大。除此之外,设计师考虑到万女士将来有了宝宝,可以边做家务边照看,互动感更强。
※ 岛台设计贴士:
一般高度在90~93cm,搭配60~65cm高座椅能达到最舒适的坐感。
岛台长度不宜小于120cm,否则显得不大气,根据厨房整体空间,可以设计到180~200cm长;
宽度区间则是根据生活需要,在75~150cm灵活设计。
想要避免油烟进入室内,可以选择吸力强劲的抽油烟机或者可以增加折叠式玻璃移门,爆炒时可以关闭,保持室内空气。
万女士家空间有限,设计师做75cm宽的台面,下方预留15cm的空间,入座时腿部空间充裕。
#客餐厅&多功能房
独立的就餐空间是万女士的核心诉求之一,设计师将客厅和次卧间的玻璃墙体外移,释放原先U型鸡肋空间,扩展到3.5m宽。

设计师在这个空间叠加了客餐厅双重功能:用一张小户型很少选择的圆形餐桌,搭配和餐桌坐高相符的沙发;与岛台形成三角形的对话角度,用餐、聚会都很温馨。
调整客厅、卧室面积后,次卧则规划成多功能房。靠椅搭配小圆几,周末午后夫妻二人晒晒太阳、喝喝茶也十分惬意;可移动式储物柜承载了日常杂物的收纳。
不论是房间的面积布局还是可移动软装搭配,设计师都是考虑到未来万女士一家的家庭结构变化而设计的。
后期可以随意组合搭配,比如组合式书柜+写字台可做独立书房;或者榻榻米床+柜体组合做儿童房;
设计师做了长虹玻璃移门作为客餐厅与多功能房的隔断设计,保持透光性的同时,也保持了空间私密性,将来改做儿童房,独立性也不打折扣。
通过整体设计和改造,原本集中在一起的3扇门消失了,从入户到窗户,空间完整、通透,但功能却相互独立,居住舒适度大大提升。
# 主卧&功能阳台
设计师在主卧的设计上又进行了哪些思考呢?万女士衣服太多增加储物空间,还要给宝宝要预留婴儿床的位置以及储物空间,解决晾晒的问题等,接下来看解决方案!

在主卧这个大空间,设计师用定制衣橱“造”出一个5米的开放式衣帽间,换季收纳全都能塞,再增加储物的同时,独立衣帽间具有隐私性,更衣不尴尬!两排柜体之间,设计师选择了一款多功能梳妆台,既能作为万女士的化妆区域也可以让先生在这里轻办公,空间独立不受干扰。
相比于客厅,主卧的整体风格设计和单品选择更具优雅气质。床的上方增加储物功能,为将来的宝宝做好储物空间,用窗帘作为软隔断,拉开与阳台合二为一,婴儿床也能轻松放下,床皮粉+橙黄的配色,皮质与布艺的搭配,沉稳中不失俏皮。
利用阳台L型采光优势,设计师在靠墙角落定制家务区,因为床旁边会安置婴儿床,所以利用阳台1平米的地方做洗衣烘干机,阳台告别晾晒,变身婴儿床以及玩耍空间,并且增加洗涤区域,清洗宝宝的小件衣物,设计师简直太细心了。
最家设计,为每户家庭量身定制你的家装方案, 24小时客服热线:400 8200 686~

一个市场的好坏,不在于它是否抽象地满足供需平衡,而在于它能否稳定、可靠、公平地为人们创造匹配。
在设计上海展会总监谭卓看来,设计、时尚、科技之间的交融与关联度越来越深,“尤其是如今科技、AI带来的种种变革,赋予了设计新的工具与生命力”。
黄仁勋认为OpenClaw标志着软件架构的重塑。
花费数百万买到的期房,到底是个温馨新家,还是糟心的缺陷房屋,唯有在收房之时才能揭晓谜底。
这部全球首部以“生态环境法典”命名的综合性法律,将“绿色低碳发展”独立成编并明确鼓励绿色设计,标志着我国生态环境治理从“末端管控”向“源头预防”的制度跨越,也让绿色设计从企业自愿探索,正式成为产业发展的法定要求。