
{{aisd}}
AI生成 免责声明
本期改造:房子小,没有公共活动空间,一家人长期不交流,家庭矛盾升级!
本期装修委托人小马,和父母一起住在这套几十年没有装修的老房子里。这套20年前让他们一家三口引起为傲的房子里,但最近几年家的感觉似乎变了,老旧的房子没有可以沟通的公共空间,两代人各自待在自己的房间里,长期不沟通,经常发生矛盾。最终小马向《最家计划》发来了求助,希望通过这次改造一方面可以改善和父母的关系,另一方面希望可以转运收获喜事。
坐标:上海普陀区银杏路
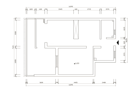
面积:49㎡
户型:两室一厅
费用:基础硬装16W
居住人数:一家三口
设计师:章程
居住难题

//进门无换鞋空间,完全满足不了一家三口的实际需求。
//典型的老式公房厨房,灯光背光,橱柜内部收纳区域分隔不明确,厨房收纳空间严重不足。
//开门进来就能看到厕所,隐私性差,设备老旧,水压不足,完全没有适老化的设计。
//客餐厅光线昏暗,家具老旧,环境压抑。
//卧室结构储物空间不足,东西堆放杂乱,没有可以使用的办公空间。
//原有的衣橱无法满足衣服收纳,很多被堆砌在角落,顶部的橱使用不便,较危险。
//阳台与空调外机在一起,夏天炎热不堪。宽敞的阳台没有合理的空间,需要重新规划。
解决方案

改变原有厨房的格局。玄关、厨房、卫生间动线流畅,布局分明。
利用玄关处鞋柜后方做了扇门,避免厨房正对卫生间的尴尬,厨房利用移门,组织了油烟进入到其他空间。
将原始卫生间的窗户缩短,只保留上半段,有效保证了隐私。
调整过道空间和部分卧室的面积,重新定义客餐厅。
阳台去掉半墙,用加氮中空玻璃形成整面落地窗,增加采光和隔音。
玄关
格局重塑,贴心实用
原始房型进门毫无换鞋空间,只有小壁龛的收纳,完全满足不了一家三口的实际需求。平日里到家,小马必须在门口把室外的鞋拿到房间里去收纳,闺房里现在已经堆满了鞋盒。
#经改造,设计师将原来的格局重塑,新造出来的玄关,可以收纳一家人的有的鞋,玄关处的折叠换鞋凳和挂衣钩,贴心又实用。
客厅
狭小阴暗空间变身通透大客厅
一家三口最大的问题点在于没有一起舒适的共处空间,造成了虽然在同一屋檐下,但极少有机会好好沟通,矛盾加剧。

原始客餐厅光线昏暗,格局家具老旧,很压抑的环境,久而久之,这里完全沦为杂物间,堆了各种闲置物品。
#利用原来堆杂物的一个过道空间和部分卧室的面积,整合出马家梦寐以求的大客餐厅,次卧的门向右移动后做了隐形门的处理,变化出完整的电视背景墙,集结了展示柜、电视嵌入,收纳三重功能,小小的茶几也另有玄机,可以升高变化成大餐桌,容纳十人就餐。
厨房
动线流畅,布局分明
进门先见厨房,最典型的老式公房厨房。厨房设备老旧,橱柜内部收纳区域分隔不明确,厨房收纳空间严重不足。
虽然有窗有灯,但总体光线非常昏暗,委托人家里主要是马爸爸烧饭,但马爸爸有严重的眼疾,平时要在这个昏暗的厨房煮饭,眼睛基本看不清楚。煤气灶已经老化,他发明了自己的点火方式,用一根线拴着小板凳来帮忙点火。敞开式的厨房也导致油烟大量进入其他空间,苦不堪言。
上海人家又非常注重饮食,在这种光线和环境下,可以想象做饭比较艰难,也很难有美好的心情。
#经装修,原来进门就是厨房的格局被彻底改变了。玄关、厨房、卫生间动线流畅,布局分明。厨房虽然不大,但充分利用了面积,还塞下了一个双开门大冰箱。隐蔽通透的长虹玻璃移门,再也不用担心油烟进入到其他空间。
卫生间
保护隐私,爱马仕橙设计大气有质感
原来的厕所在进大门处就能看到,位置有点尴尬。设备老旧,甚至有破损,检查马桶抽水后,发现水压明显不足。浴缸的形式需要跨进跨出,对于叔叔阿姨非常危险和不方便。

#考虑到卫生间的窗外是公共的走道,这次装修,把原来的窗户缩短了,只保留上半段,有效保证了隐私又通风。
#原来下半段的窗户位置变成了镜子,这样,小卫生间也有了一面大大的穿衣化妆镜,无限放大了厕所的空间。一抹爱马仕橙,在顶部灯光的映衬下,让卫生间既有质感,又灵动活泼。
主卧
小房子秒变大宅的既视感
餐桌被放置在床边,狭小的空间,2人用餐都很局促。狭窄的空间还挤了木制沙发,但基本也沦为置物架。
家里的宠物小猫没有自己的空间,只能缩在凳子底下,原有的衣橱无法满足衣服收纳,很多被堆砌在角落,顶部的橱使用不便,安全隐患大。

#爸妈的卧室门是专门定制的折叠门,拉开门,客餐厅和卧室连贯成一气呵成的一个大空间,让纵向空间在视觉上得以延展,客厅与卧室互借空间,小房子立刻有了大宅的既视感。
次卧
精致小屋,时尚大气
委托人小马喜欢精致的生活,也事业有成,兴趣广泛,但目前这个空间让回家的心情非常槽糕压抑。
桌子很多,但完全没有可以使用的办公空间,柜子不少,但因原始结构储物空间不足,明显收纳严重不足,各种收纳箱布满整个房间。虽然朝南有窗,但窗外各种杂物堆积,从心里感受上也非常不好。

#利用了客厅门的移位,将整面墙做成一个衣帽间,里面还藏了一面镜子,满足女孩子照镜子打扮的需求。
利用阳台的大空间给卧室拓展一块休闲的地方,一边是展示柜,另一边则是洗漱的位置,在早晨起床着急上班的时候可以在这刷牙洗脸,化妆打扮。
阳台
引光入室,隔绝马路噪音
有宽敞的阳台,非常珍贵,但目前状态杂乱无章,与空调外机在一起,夏天肯定各外炎热不堪。
叔叔爱好种花种菜,但没有合理的空间,需要重新规划。
#阳台处去掉半墙,用加氮中空玻璃形成整面落地窗,不仅最大程度引光入室,更让紧邻马路噪音困扰的马家拥有了安静的空间。
阳台上方也可以种植蔬菜、花草,完全满足了叔叔的心愿。
#装修TIPS总结
49平米的小房子,通过改变4个门洞位置,改造出了两房两厅的全新格局。同时,这次装修还拓展出6平米的宽敞阳台,增加了10个立方的储物空间。大气简约的新房不仅给马家带来了明媚的好氛围,化解了家庭矛盾,也将迎来小马的喜事。
最家计划
沪上知名家装真人秀节目
新闻综合、第一财经、纪实人文
教育频道、都市频道
五大频道强势热播
50000+装修案例
500+天团设计师
5大严选装企
解决装修难题、挑选靠谱装企
最家设计方案、24小时监工、双重质检
最家计划您身边的装修管家
