
{{aisd}}
AI生成 免责声明
本期改造:对于上班族来讲,一人住着百平的房子,应该是相当惬意才是。本期的委托人高先生是一名会计师事务所的高级项目经理,成功主导了多家上市公司、国企的年报审计以及IPO上市。这样一位都市精英,谁料想回到家却另有一番模样……
他向我们吐槽自己每天的活动面积只有20㎡,房子是十几年前买下来的,整个房子居住状况一直不好,之前作为出租用没有意识到居住竟然如此不便。现如今,高先生找到《最家计划》,迫切希望改造现在的居住环境。
房屋信息
坐标:龙柏城市花园
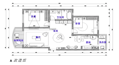
户型:两室两厅一卫
面积:104㎡
居住人数:1人
费用:硬装18w
明明是100㎡的房子,
却只能委屈的住20㎡
所有的起居活动,
只能蜷缩在一间朝北的小房间里,
硬装软装都老化严重,
这样的居住环境,
委托人再也不想将就了
居住难题

大门正对卫生间门,进门就面临尴尬。
两边阳台不隔音、不密封,在高架边,还容易积灰,厚重的移门影响采光。
客厅区域“鸡肋”的罗马柱将客餐厅不合理分割。
为了隔音,次卧装了两道窗,非常影响美观度。
卫生间本身够大,但布置过于拥挤,浴缸常年堵塞,无法泡澡。
卧室采光差,靠近高架,噪音太大。
解决方案

隔断设计首先解决入户门正对卫生间的问题,门厅新增两面大排玄关柜,储物空间更合理。
拆除客厅“鸡肋”的罗马柱,增加采光,变客餐厅一体的开放式格局。
南阳台抬高15厘米,变为绝佳的景观休闲区,还可以当作隐藏的第三间卧室。
卫生间三分离,泡澡区高度抬高80毫米,特制的冲排水系统让日常的打理变得更轻松。
拆除“鸡肋”的罗马柱
形成客餐厅一体式格局
这次的改造,从进门开始就体现了设计师的细心和贴心。原本空荡的门厅新增两面大排玄关柜,白色鞋柜大气灵动,内置的活动层板,可以根据鞋子的高度随心定制收纳空间。智能化的设计更是符合了业主对极简主义的追求。
原房屋的客厅虽然宽敞,但堆满了太多破烂的家具,平日家里来客人连坐的地方都没有。阳台厚重的移门严重影响客厅的采光,“鸡肋”的罗马柱将客餐厅割裂成两个区域。过低的吊灯遇上高高低低的地板,“宽阔”的客厅竟然没法落脚……

改造后,罗马柱被拆除,整个客厅得以贯通,严格依照黄金比例分割,整个空间都顺畅了不少。
背景墙采用了现代极简主义运动连贯的设计手法,严格依照黄金比例分割圆心灯带。清新自然,颜色出挑。
浅灰色系搭配墨绿皮质沙发,全屋无主灯的设计,晚上一家人坐在一起享受影院般的生活。高先生连连称赞:“这就是我要的高级感!”
南阳台被抬高15厘米,既增加了视觉空间的层次感,又是一个绝佳的景观休闲区,装上移门,还可以当作第三间卧室。
调整吧台高度
再也不用“躲”在冰箱后就餐
餐桌太小,吧台太高,餐厅与厨房同样一言难尽……平时家中来客人,几个人要把餐桌从冰箱和鞋柜“拖”出来,才能吃上饭。高先生自己在家时只能将就在吧台吃饭,无奈吧台高度也不合理,吃顿饭实在“太累了!”
凌乱的橱柜,无处安放的冰箱让日常的使用困难重重,空间显得支离破碎。
设计师根据人体工学首先调整吧台高度,高先生终于可以"舒服"的吃顿饭了,旁边黑板的设计满足了高先生记录食谱的小心愿。
吧台下方也有设计师的小心机哦~镂空的设计,与阳台的落地推拉移门对应,整个吃饭区域的采光都非常好。

增加收纳,调整水池高度
做饭不再“痛苦”
第一次走进厨房间,设计师和主持人都“吓到”了,厨房也不小,转身就能撞上台面,水池高度太矮,台面只有80厘米,高先生说每次做完饭腰弯的都要断了……
设计师将客厅的冰箱移到厨房,功能分区也较为合理。u字型操作台面,动线流畅,又有足够的储藏空间。

设计师将客厅的冰箱移到厨房,功能分区也较为合理。u字型操作台面,动线流畅,又有足够的储藏空间。
调整过后的水池高度也非常合适,所有的功能都做到了量身定制,做饭成了高先生的一种享受。
卫生间三分离,引水流到一处
不再有卫生死角
业主平日喜欢泡澡,无奈原始的浴缸经常堵塞,大浴缸成了“摆设”,平日里一不小心,地面就有积水,整个卫生间阴暗又潮湿,老化的设备都出现了不同程度的故障。
考虑到浴缸使用时难免水会溅到地面,容易产生卫生死角,设计师将浴缸区抬高80毫米,淋浴区降低,引四周的水往中间流,特制的冲排水系统让日常的打理变得更为轻松。
卫生间做到三分离,淋浴和泡澡同时满足了高先生的需求。墨绿色小砖搭配黑灰色系,既解压又有高级感。

主卧地台代替床铺
次卧解决噪音
主卧由于气味大,只能空下来堆积杂物。所以北卧室也成了高先生最经常待的区域,休息和工作都在这间小卧室,衣柜放在窗户边,也挡掉了一半的阳光。
改造后主卧依然延续了黑白灰的主题,特制的地台代替了床铺,四周安置了感应灯,温馨浪漫。
次卧解决了噪音问题,空间布局更加多元化。衣柜电脑桌都合理安置,采光增加了不少。既可以当次卧,还可以作多功能房,有了第三代还可以改成儿童房。
#装修TIPS总结
从只能蜗居20㎡的一间房,到三室两厅的大宅体验;从格格不入的压抑,到既有个性又解压的新空间,高振奇用一次装修找到了生活本该有的美好。
喜欢这种极简主义风格,可以来找我们
最家计划
沪上知名家装真人秀节目
新闻综合、第一财经、纪实人文
教育频道、都市频道
五大频道强势热播
50000+装修案例
500+天团设计师
5大严选装企
解决装修难题、挑选靠谱装企
最家设计方案、24小时监工、双重质检
最家计划您身边的装修管家
